현재 위치

  1. Home
  2. ALL
  3. 80PY+

80PY+

80PY+

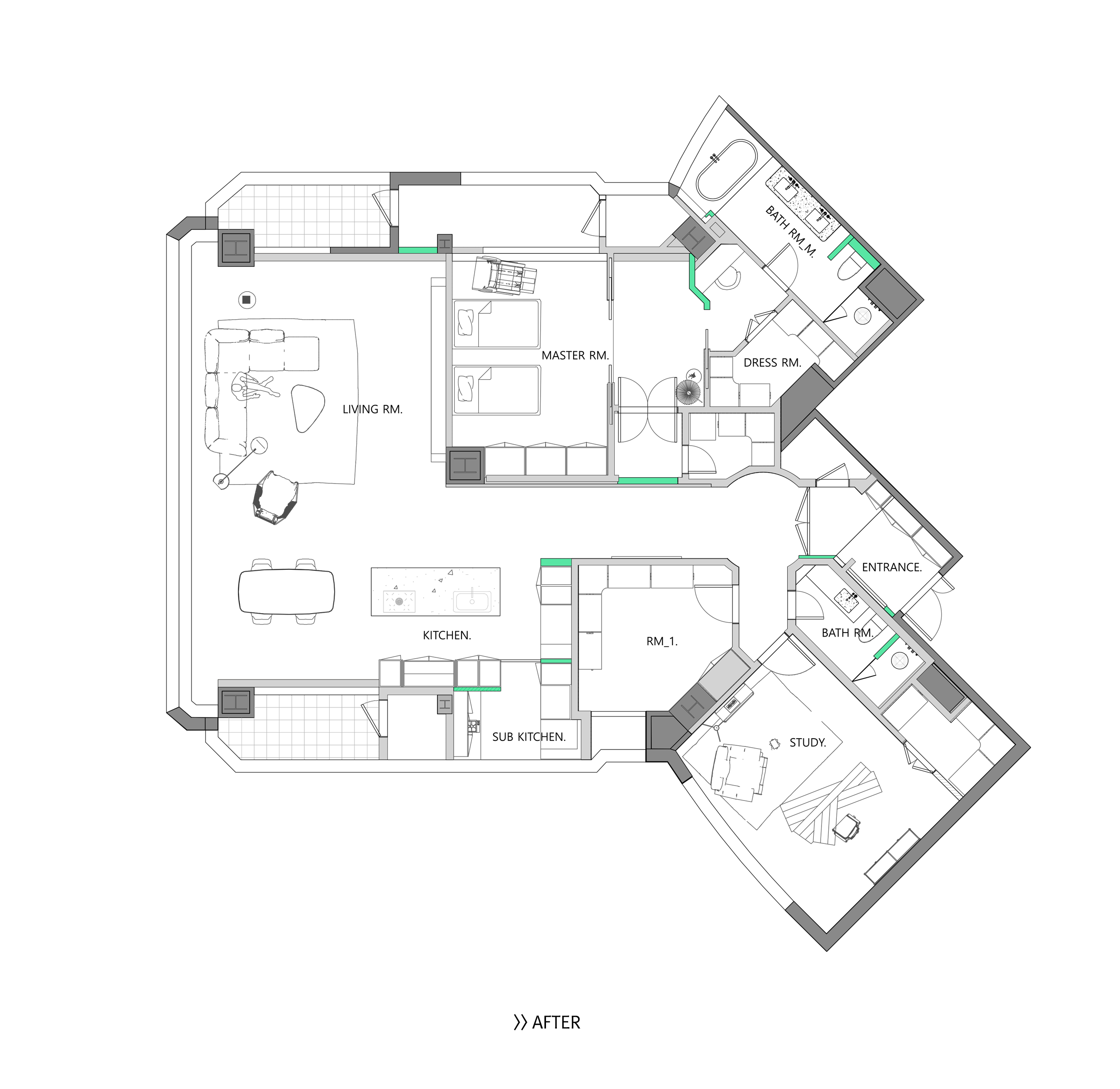
마포 A 아파트 77py

  • 면적 : 255㎡
  • 위치 : 공덕동
  • 바닥 : 타일
  • 천정 : 도배
  • 벽체 : 도배
  • 면적 255㎡
  • 위치 공덕동
  • 바닥 타일
  • 천정 도배
  • 벽체 도배


  • 마포 A 아파트 77py마포 A 아파트 7

이전 제품 다음 제품